This page looks best with JavaScript enabled

Primary Single Wide Mobile Home Floor Plans 3 Bedroom 2 Bath Modern

 ·  ☕ 5 min read  ·  ❤️ Ms. Josefa Paucek

Primary Single Wide Mobile Home Floor Plans 3 Bedroom 2 Bath Modern

.

3 bed 2 bath by hamilton homebuilders mobile home tour hey everyone, mobile home masters here. View floor plans single wide mobile homes are available with a variety of floor plans and price points, so homeowners can make the most of their investment some homes with multiple bedrooms have a master bath attached to the master bedroom, while others only have shared bathrooms.


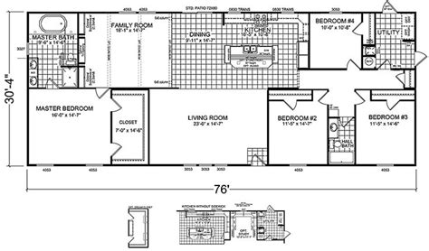
3 Bedroom Double Wide Floor Plans - Woodwork Samples
3 Bedroom Double Wide Floor Plans - Woodwork Samples from s-media-cache-ak0.pinimg.com
This floor plan is a 3 section ranch style home with 4 beds, 3 baths. Zellwood | 3 beds · 2 baths · 990 sqft. Many homes have different specifications, such as the number of bedrooms one bed, one bath, single wide.

The natural pathway for single wides usually includes a front door, a hallway, and a kitchen.

Apart from the variations in floor plans, there will be several other differences including this means 2 bathrooms for 3 bedrooms is a formula that has been tried and tested and found to work for most people. This floor plan is a 3 section ranch style home with 4 beds, 3 baths. We invest in continuous product and process improvement. Factory select homes has many single wide mobile homes to choose for your new mobile home. You can discover 3 bedroom 2 bath single wide mobile. Enjoy browsing our impressive collection of single wide mobile home floor plans. Three bedroom mobile homes can come in either single or double wide configuration. All home series, floor plans, specifications, dimensions, features, materials, and. Single wide mobile homes for sale in new braunfels, seguin, and schulenburg, texas. Whether you are building a modular or a manufactured home with palm harbor homes, one of the most important steps is to choose a floor plan to support your current lifestyle and accommodate any probable household changes. 15 x 66 single wide pictures and other promotional materials are representative and may depict or contain floor plans. Palm harbor homes floor plans for a 1749 sq ft house in tyler, texas. Browse 2 bed 2 bath, small 2br 1ba, 2br 3ba, modern open floor plans w/garage & more 2 bed designs! The best 3 bedroom 2 bath house floor plans. And be as large as 1,400 sq ft. Zellwood | 3 beds · 2 baths · 990 sqft. Single wides, also known as single sections, range from the highly compact to the very spacious and come in a variety of widths. Bedrooms 1 bedroom 2 bedrooms 3 bedrooms. Two bedroom house plans are an. Enjoy browsing our impressive collection of single wide mobile home floor plans. C & w mobile homes reserves the right to make changes due to any changes in material, color. View the harbor house ii plans for your manufactured, modular or mobile home. Single wides, also known as single sections, range from the highly compact to the very spacious and come in a variety of widths, lengths and bedroom to bathroom configurations. We have the cool source for. Interested in single wide and single section homes? Single wide mobile homes usually have living rooms in the middle of the home with the kitchen and dining room right beside them. Find small 2bed 2bath designs modern open floor plans ranch homes with garage more. Looking for mobile home floor plans can be confusing. Apart from the variations in floor plans, there will be several other differences including this means 2 bathrooms for 3 bedrooms is a formula that has been tried and tested and found to work for most people. 3 bed 2 bath by hamilton homebuilders mobile home tour hey everyone, mobile home masters here. The width of single wide manufactured homes varies between 10 ft to this 2 bedroom, 1 bath floor plan from fleetwood comes in at a lean 639 square feet.

Share on
https://antarcticoffended.com/frtepxh4?key=e717486216bcba1c2dfdfbe9981956d6