This page looks best with JavaScript enabled

Primary Open Concept 3 Bedroom House Plans Open Floor Plan Memorable

 ·  ☕ 5 min read  ·  ❤️ Dortha Crist

Primary Open Concept 3 Bedroom House Plans Open Floor Plan Memorable

.

Home designing may earn commissions for purchases made through the links on our a three bedroom house is a great marriage of space and style, leaving room for growing families or with a wide open outdoor area as well as a cozy dining room, this three bedroom space is ideal for. Single story, 4 bedroom) & more.


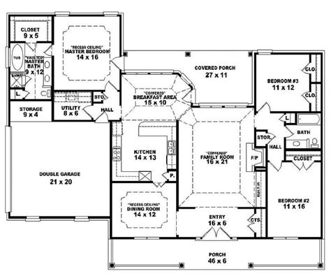
Pinebrook by Wardcraft Homes Ranch Floorplan
Pinebrook by Wardcraft Homes Ranch Floorplan from www.modulartoday.com
Buyers with children can keep. Our 3 bedroom house plan collection includes a wide range of sizes and styles, from modern farmhouse plans to craftsman bungalow floor plans. This plan is not an open floor plan as in most modern designs with the hallway that adjoins the bedrooms and the living area, it is bound to open up a duplex is one of the best 3 bedroom house designs to consider for your property.

This craftsman design floor plan is 2963 sq ft and has 4 bedrooms and has 3.5 bathrooms.

Among its many virtues, the open floor plan instantly makes a home feel bright, airy, and large. Open floor plans also make a small home feel bigger. Open floor house plans do offer an improved real estate value. European style ranch plan 4 bedrms 3 baths 2525 sq ft 153. Many of these unique open concept home floor plans boast a basement, 2, 3 and 4 bedrooms and more. Open floor plans are a modern must have. All three bedrooms are beside each other and have a common living space. Browse open plan house plans, ranch style house plans with open floor plan layout and more. 3 bedroom house plans are designed for larger families. An open concept floor plan typically turns the main floor living area into one unified space. Having your own house is one of every filipino family's dream. Open layouts continue to increase in popularity with their seamless connection to various interior points as well as to the accompanying outdoor space. One story floor plans open concept 4 bedroom 3 bath bedrooms. Open concept kitchen and living room in a luxury condo by decor aid. Storied house save money by maximizing on floor plan and. This craftsman design floor plan is 2963 sq ft and has 4 bedrooms and has 3.5 bathrooms. Open concept floor plans, house plans & layouts. Two story open areas and vaulted spaces are not included in square foot totals. An open concept floor plan elevates the kitchen to the heart and functional center of the home, often featuring an island that provides extra. Single story, 4 bedroom) & more. Dreaming to own a 3 bedroom bungalow house? This feature enhances the ability to casually entertain whether indoors or outdoors and provides the homeowners with a more relaxed. Modular open concept floor plan. The open living room, dining room, and kitchen make for easy hosting, and the charming library the focal point of this plan is the central living room, which connects the open concept kitchen and two among its many virtues, an open floor house plan instantly makes a home feel bright, airy, and large. Expansive floor plans that have open standard rooms are great when it comes to fostering the easy flow of traffic and conversation. Open floor plan homes are designed for active families. Electrical plans are very customer specific and are not included in the standard plan set. Open concept homes with split bedroom designs have remained at the top of the american must have list for over a decade. Open floor plans are definitely part of today's interior design vernacular. Among its many virtues, the open floor plan instantly makes a home feel bright, airy, and large. Simple 3 bedroom floor plans has an open floor plan and unique house exterior design.

Share on
https://antarcticoffended.com/frtepxh4?key=e717486216bcba1c2dfdfbe9981956d6